The Enterprise Building

The Enterprise Building
  • Zoning allows for office, professional, medical, and personal service type uses
  • Beautiful 3-story brick building with renovation in progress
  • Rent includes electric, interior & exterior maintenance, and janitorial service Mon. - Fri.
  • Exterior monument signage availability
  • Excellent parking
  • Easy access to local amenities
For Lease - Available
1110 Douglas Avenue
Altamonte Springs, FL. 32714

Total Space Available: 3,642 RSF
Min Divisible: 916 RSF
Max Contiguous: 1,452 RSF

Property Type: Office
Property Subtype: Office Building
Lease Type: Full Service

Building Class: B
Building Size: 18,631 SF
Year Built: 1986
Zoning Description: MCO-1

Download Flyer Full Aerial View Contact Broker
Suite Space Available Min Divisible Max Contiguous Price Date Available Lease Type Description
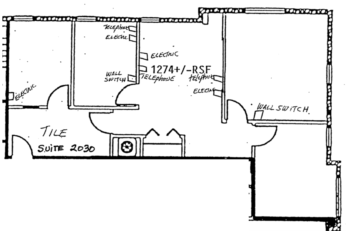
Suite:1002Space Available:1,452 RSFMin Divisible:1,452 RSFMax Contiguous:1,452 RSFPrice:TBDDate Available:NowLease Type:Full ServiceDescription:Office SuiteSuite:2030Space Available:1,274 RSFMin Divisible:1,274 RSFMax Contiguous:1,274 RSFPrice:TBDDate Available:NowLease Type:Full ServiceDescription:Office SuiteSuite:2040Space Available:916 RSFMin Divisible:916 RSFMax Contiguous:916 RSFPrice:TBDDate Available:NowLease Type:Full ServiceDescription:Office Suite
Floorplans

Contact Info

9876 West Green Street

Phone: 1-800-987-6543

Mobile: 1-800-345-6789

Web: Avada WP Theme